East Coast
From $357,418 incl GST
80m²
2 Bed
1.5 Bath
Open Plan Living
1139 Maraekakaho Road,
Hastings, Hawke's Bay
Mon-Fri: 8.30 – 4.30pm P: 06 870 8979
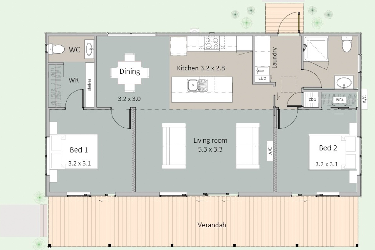
Step into our delightful two-bedroom monopitch East Coast model. Featuring a central living area, 2 bedrooms, and 1.5 bathrooms, this cozy retreat is designed for comfort and style.
The kitchen and dining area are situated at the rear, while the living space and bedrooms seamlessly connect to the charming covered veranda. Bedroom 1 features a walk-in wardrobe.
Looking to enhance your outdoor experience? Choose from options for a rear deck to elevate your relaxation space.
Length: 12.4m
Width: 8.4m
Roof: Monopitch
Join our newsletter and be the first to hear about new designs, exciting projects, and helpful tips for your home-building journey.
Sign UpThinking about building? Our brochure brings together everything you need, from designs and features to our building process. Download it today and start planning your new home journey.
Get the Brochure
Keep up to date on our latest goings on
Discover more about HB Homes & Commercial. Complete the form below to download your PDF brochure and explore our designs, process, and building options.