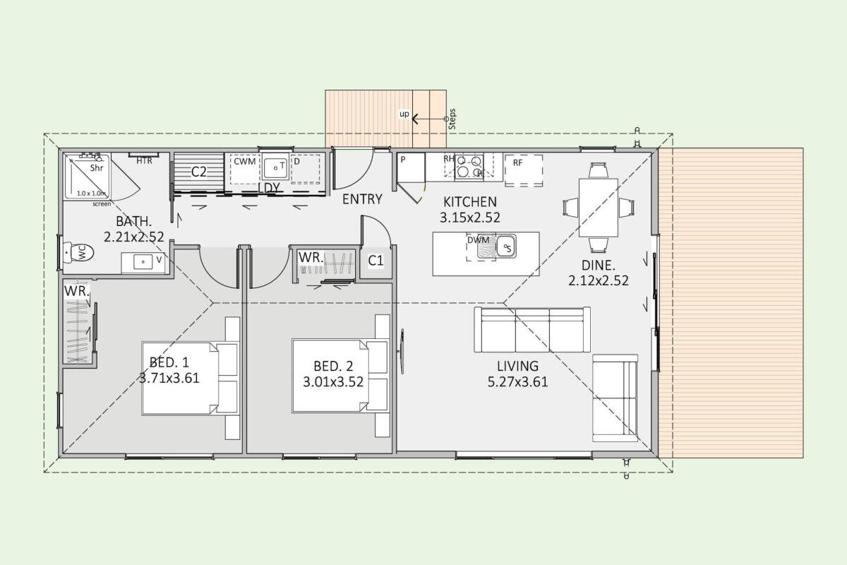
Ngaruroro
From $315,000 incl GST
80m²
2 Bed
1 Bath
Open Plan Living
Separate Laundry
1139 Maraekakaho Road,
Hastings, Hawke's Bay
Mon-Fri: 8.30 – 4.30pm P: 06 870 8979
From $315,000 incl GST
Step into the comfort and convenience of our popular Ngaruroro model, tailored to generate passive rental income or create a cozy second dwelling right on your existing property.
Boasting two double rooms and a generous living space, this self-
contained home seamlessly blends into both urban and rural environments. Personalise your living space with a selection of roof designs, or you fancy a back or front decking area, our versatile design allows for easy customisation. The back door feature provides convenient access to garages or service areas, adding practicality and functionality.
Length: 12.4m
Width: 6.4m
Roof: Hip
Join our newsletter and be the first to hear about new designs, exciting projects, and helpful tips for your home-building journey.
Sign UpThinking about building? Our brochure brings together everything you need, from designs and features to our building process. Download it today and start planning your new home journey.
Get the Brochure
Keep up to date on our latest goings on
Discover more about HB Homes & Commercial. Complete the form below to download your PDF brochure and explore our designs, process, and building options.